Drawing Template: Architectural
Master AutoCAD architectural templates for professional drawings
This tutorial builds essential AutoCAD skills by teaching you how to leverage drawing templates for architectural projects, ensuring consistent setup and professional results.
Key Learning Areas
Drawing Template Files
Understanding .dwt files and their role in creating consistent drawing setups. Learn how templates preserve settings across projects.
Template-Based Creation
Step-by-step process for creating new drawings from existing templates. Master the workflow for efficient project initialization.
What You'll Accomplish
Experience the template-based workflow firsthand
Understand how templates preserve configurations
Apply real-world architectural drawing techniques
Template to Drawing Workflow
Access New Command
Use CTRL-N or File > New to open the template selection dialog
Select Template
Choose appropriate .dwt file for your project type
New Drawing Created
AutoCAD generates a .dwg file with sequential naming (Drawing1.dwg, etc.)
Save with Custom Name
File remains as .dwg type, protecting original template from overwriting
File Type Recognition
| Feature | Template Files (.dwt) | Drawing Files (.dwg) |
|---|---|---|
| Icon Color | Red icons | Yellow and blue icons |
| Purpose | Create new drawings | Working documents |
| Accessibility | Cannot open directly | Can open and edit |
Architectural Drawing Setup Process
Template Selection
Navigate to Template Architectural-Imperial.dwt and double-click or use Open button
Verify Units Configuration
Check Drawing Units dialog shows Architectural type with feet/inches format (6'5 notation)
Review Layer Structure
Examine Layer Control for architectural-specific layers like walls, doors, windows, and furniture
Set Active Layer
Select A-Furniture layer for drawing furniture objects with appropriate properties
Layer names in architectural templates reflect drawing content types. This organization system helps maintain drawing standards and makes collaboration more efficient.
Key Takeaways





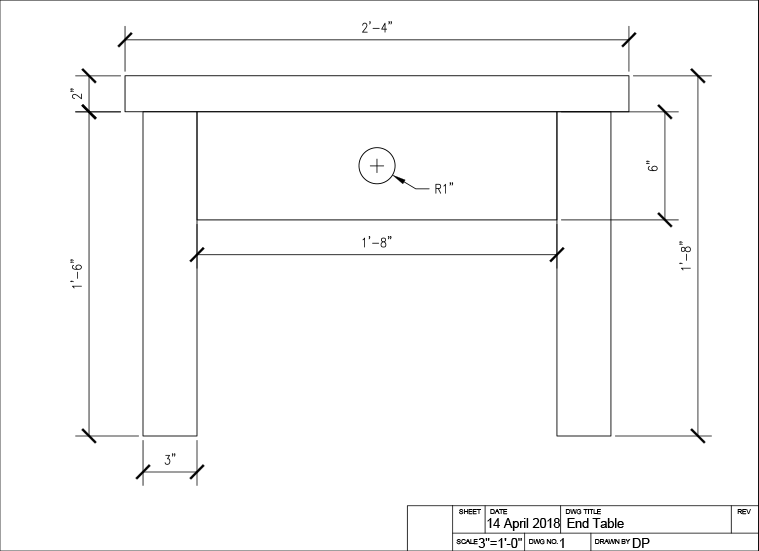
to create the table top. Click anywhere to establish your starting point, then input 2'''4,2 for the X and Y dimensions. Notice how the template's unit settings allow you to enter measurements in natural architectural format.
to assemble your table components. Position the table top, drawer, and legs according to the reference image below, creating a cohesive furniture piece.
to add the drawer knob. Use the Geometric Center object snap to precisely center the circle on the drawer rectangle—remember to hover your cursor over the rectangle's edge to reveal its geometric center point. Specify a radius of 1 inch for appropriate scale.