Offset & Explode Commands
Master AutoCAD Offset and Explode Commands Efficiently
Essential AutoCAD Commands Overview
Offset Command (O)
Creates parallel copies of lines at specific distances from originals. Essential for wall construction in floor plans and architectural drawings.
Explode Command (X)
Breaks down polylines, blocks, arrays, and grouped objects into individual components for more precise editing and modification.
Common Offset Distances in This Tutorial
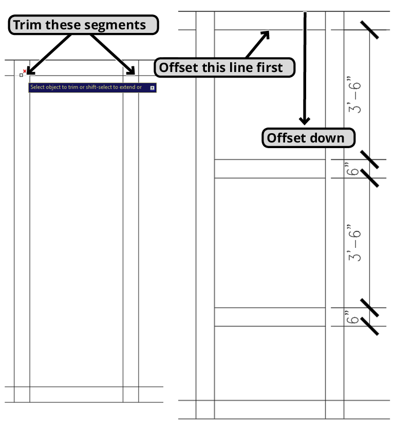
You can easily change the Offset Distance by pressing Enter or Spacebar twice to stop and restart the Offset command, prompting you to enter a new distance.
Basic Offset Command Workflow
Start Offset Command
Press O + Enter or click the Offset button in the Modify panel. You must specify a distance before proceeding.
Enter Distance
Input your desired offset distance (e.g., 6 inches for wall thickness).
Select Object
Click on the line or polyline you want to offset.
Specify Direction
Click on the side where you want the offset copy to appear.
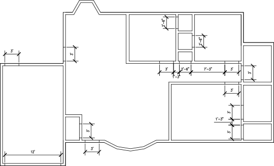
Floor Plan Wall Creation Checklist
Creates the main exterior walls of the building
Click inside each room to create interior walls
Use larger distance for room spacing requirements
Multiple offsets create the 3 foot closet space between walls
Clean up intersections for professional appearance
Don't worry about overlapping lines during the offset process. You will correct them later with the Trim Command.
Offset vs Explode Command Usage
| Feature | Offset Command | Explode Command |
|---|---|---|
| Primary Function | Creates parallel copies | Breaks grouped objects apart |
| Command Alias | O | X (not EX) |
| When to Use | Creating walls, boundaries | Isolating line segments |
| Requires Distance | Yes, mandatory | No |
Offset Distances Used in Exercise
Some grouped objects are made up of smaller groups and polylines, so you may need to use Explode more than once on the same objects to fully break them down.
Bathroom and Closet Creation Process
Trim Upper Edge
Delete intersecting wall portions using Trim command
Explode Polyline
Use X + Enter to break connected edges into individual segments
Offset Upper Edge
Create bathroom walls using appropriate measurements
Create Pool Features
Offset pool 4 inches outside, add 1 foot steps with arc
Each small line dividing walls represents one side of a doorway. Offset these lines to create the other side, then use Trim to create openings.
Key Takeaways










