Inserting Blocks with the Insert Command
Master AutoCAD Block Insertion with Professional Commands
Core AutoCAD Block Skills You'll Master
Insert Command Fundamentals
Learn to use the primary Insert command and its keyboard alias. Master the dropdown menu interface for quick block selection.
Block Transformation Techniques
Control scale, rotation, and mirroring of blocks during insertion. Apply proper orientation for any workspace layout.
External File Integration
Import external DWG files as blocks using the Browse function. Set up proper base points and layer configurations.
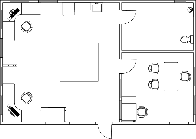
This exercise guides you through furnishing a complete studio apartment using various AutoCAD blocks including refrigerators, desks, chairs, and drafting tables with proper positioning and orientation.
Block Insertion Workflow
Access Insert Command
Use the Insert dropdown in the Home Tab Ribbon or press 'I' + Enter for the keyboard alias to open insertion options.
Select and Configure Block
Choose your block from the available list, adjust scale and rotation parameters using the Insert dialog box as needed.
Place with Precision
Position the block using its base point, utilizing object snaps and polar tracking for accurate placement in your drawing.
Understanding base points is crucial for accurate placement. The refrigerator block's base point is in the upper-right corner, which determines how it positions relative to your cursor during insertion.
Block Insertion Methods Comparison
| Feature | Dropdown Menu | Insert Dialog | Keyboard Command |
|---|---|---|---|
| Access Speed | Fast | Moderate | Fastest |
| Configuration Options | Limited | Full Control | Full Control |
| Scale Modification | No | Yes | Yes |
| Rotation Control | No | Yes | Yes |
Setting X scale to -1 flips the block horizontally without changing its size. This technique is essential for orienting furniture blocks to fit different room corners and layouts.
Block Positioning Best Practices
Provides most control for precise positioning and movement operations
Enables smooth repositioning along diagonal tracking lines
Place blocks approximately first, then fine-tune position with Move tool
Creates perfect symmetrical layouts across walls and centerlines
When blocks aren't in your current drawing's list, use the Browse button to import external DWG files. The file's origin point (0,0) becomes the block's base point automatically.
Objects on Layer 0 adopt the properties of their destination layer when inserted. Objects on other layers retain their original properties, which can cause color and formatting conflicts.
Property by Layer vs Property by Object
Setting Up Blocks for Optimal Insertion
Position Base Point at Origin
Move objects so the desired base point aligns with coordinate 0,0 using the Move command with absolute coordinates (#0,0).
Configure Layer Properties
Place block objects on Layer 0 for property inheritance, or assign specific properties for consistent appearance across layers.
Set Line Properties
Define specific linetypes and lineweights in Properties Panel when consistent appearance is required regardless of destination layer.
Test and Redefine
Insert the block, test positioning and appearance, then use the Redefine option to update the block definition with any corrections.
Key Takeaways







and select the chair. For the base point, click the Geometric Center of the seat cushion. Move the chair along the 45° Polar Tracking line as shown below – this angular movement will perfectly center the chair with the desk, demonstrating how proper planning creates elegant solutions.
to create symmetrical copies of both the desk and chair for the studio's opposite side. Use the midpoint of the left wall as the first point of your horizontal mirror line, creating a balanced workspace layout with minimal effort.






